a new mission for a former convent

a new mission for a former convent

In the first phase, the former convent of the Franciscan nuns along the Bredabaan in Gooreind-Wuustwezel was transformed into a nursing and care home campus. The construction company Ibens restored the existing chapel and constructed the new building according to a design by assar architects. Amate is responsible for the operation of the new campus, which has been named Amandina.
This name refers to a missionary sister who died in China. However, the large neo-Gothic chapel, which has been converted into a cafeteria/multipurpose room, is primarily a link to the past.
The monastery buildings were technically unsuitable for renovation into a care/nursing home from an architectural and fire protection point of view. They were therefore demolished. However, the new exterior façade is reminiscent of the old convent. After the Franciscan nuns left their convent in 2008, they started to look for candidates with a view to reassigning the use of their domain through the Kempens Landschap NPO.
Together with Amate, Ibens Bouw en Ontwikkeling submitted a dossier for the construction of a new care/nursing home and assisted accommodation. Their project fitted perfectly with the vision of Kempens Landschap and the municipality of Wuustwezel, who wish to preserve the rest of the 40-hectare estate as green space and open it up to the public. In addition, the municipality of Wuustwezel has given the CPAS [public social services centre] permission to build its Social House (‘Maison Social’). This reinforces the care character of the campus, where the non-profit organisation retains the option of extending the site for assisted living and a crèche.

| program | phase 1: conversion of the Franciscan convent into a nursing home & care home, 97 rooms in a nursing home & 20 residential/assisted living units • phase 2: extension of the nursing home to 64 rooms & 10 assisted living units |
| client | Amate NPO (non-profit organisation) |
| address | Bredabaan 737 • 2990 Wuustwezel |
| building type | care • live |
| status project | completed |
| expertises | |
| offices | antwerp |
| size | phase 1: 9.775 m² • phase 2: 4.210 m² |
| team | • client: Amate NPO • contractor: Ibens • technical equipment design office: SDK |
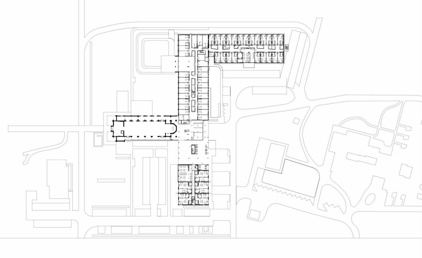
The Amandina care/nursing home is located along the Bredabaan (N1). This long road runs through the Groene Gooreind and the Franciscan nuns’ convent is nestled in the landscape. In this green setting and in accordance with the vision of Kempens Landschap, the emphasis is on harmony with the built and unbuilt environment.
Notwithstanding the open landscape, the project also took on the challenge of physically connecting to the chapel that was to be renovated. Spatially, the building deliberately avoids any kind of confrontation with the chapel. The chapel must always remain the central and highest point around which the new building is respectfully constructed.
From a technical point of view, the architect relies mainly on their experience with urban projects. This applies to details such as a threshold-free connection of the ground levels, the careful excavation of the construction trenches alongside the chapel and the watertight connection of the existing and new roofs.


To minimise as far as possible the impact on the streetscape, the shorter side of the new building was oriented towards the street.
The initial brief was to provide a second wing. This was to be as far away from the street as possible in order to blend in behind the landscaping. At the same time, the rectangular volume, like the former convent, also defines the necessary outdoor spaces. Functions such as a cafeteria and multi-purpose areas integrated into the former chapel emphasise the hybrid character of the building.
Inside, the spaces are organised on the basis of a dual circulation, with the technical rooms forming a central sculpture. The rest and care rooms are located on the ground floor and on the first and second floors; the assisted living quarters are on the third floor.
The spatial qualities of the chapel were fully exploited in the renovation: the serene atmosphere is reflected in the secluded reflection space, while the high nave provides a spectacular view of the meeting room.

site plan

Harmony with the environment is particularly reinforced by the materials used. Although the care/nursing home is completely new, there are some references to the historical elements of the chapel, such as the layers of bluestone.
In general, the new building is less ornate, mainly in order to preserve its tranquillity. The supporting structure is made of prefabricated concrete. The facing facades are made of glued bricks that create the same smooth and solid facade surfaces. With a mixture of two different bricks, the patina effect has been restored, which is the best match for the colour of the chapel.
In addition, the (insulation) materials and techniques contribute to sustainability. The toilets are flushed with recovered rainwater. For heating, in addition to natural gas, geothermal heat is used, with two boreholes almost 100 metres deep. Solar thermal panels on the roof are used to heat the domestic hot water. Electricity is supplied via the distribution network.


Each room is equipped with an electric pull-out bed with anti-bedsore mattress. A table, chair, and sofa are provided, but residents can also bring their own furniture. The carefully chosen seating material and curtains in the communal lounges, which also have therapeutic kitchens, provide an additional experience.




assar and Ibens were commissioned once more in 2019 to expand the centre from 64 rooms and 10 assisted living units.
The new wing is connected to the existing building in an L-shape. It frames the campus at the back and offers residents a breathtaking view of the adjacent nature reserve. At the same time, the neo-Gothic convent chapel remains a focal point of the landscape.
The rest and care rooms are located on the three lower floors, each structured around a living area with an open kitchen. The assisted living units on the top floor form an independent complex with the existing apartments. In terms of form, layout, and colour scheme, the new building integrates perfectly with the existing building. Only the playful variation in the use of materials and the rhythm of the facades indicate that this is not the whole story. To avoid the extension feeling like a separate building on the inside, the interior of the existing building is also being refreshed. By using the same wallpaper and colours in the old and the new, a smooth transition is achieved.
With the refurbished chapel, the multi-purpose hall also meets the evolving needs of the care/nursing home. As part of its sustainability objectives, Amate has significantly expanded both the photovoltaic installation and the rainwater storage.

want to know more about assar or contribute to its continuous development