how a hospital architectural composition integrated into a natural setting can contribute to the enhancement of the accommodation, treatment & healing of patients

how a hospital architectural composition integrated into a natural setting can contribute to the enhancement of the accommodation, treatment & healing of patients

The William Lennox CHN (Centre Hospitalier Neurologique) [Neurological hospital centre] has the advantage of an exceptional location in a forest listed as a Natura 2000 site.
The architecture of the 2 new buildings must therefore be able to enhance a dual relationship:


| program | complete renovation of the CHN site & construction of new extensions |
| client | Centre Hospitalier Neurologique William Lennox |
| address | allée de Clerlande 6 • 1348 Ottignies |
| building type | care • heal |
| status project | under construction |
| expertises | |
| offices | brussels |
| size | 22.389 m² |
| team | • client: Centre Hospitalier Neurologique William Lennox • stability technologies: Setesco • special technologies: BICE |

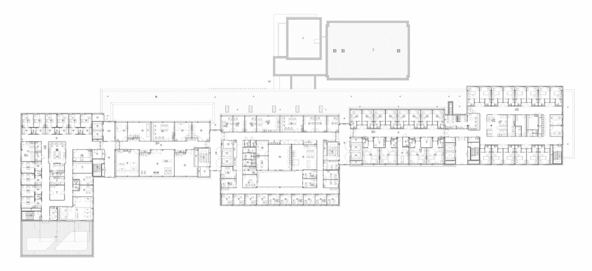
The first extension (ground floor + 3), accommodates the paediatric hospitalisation units and coma resuscitation unit. It is rotated by 90° in relation to the general principle of buildings alignment, a choice made in order to avoid the development impinging upon the forest. It therefore presents a smaller façade than the current volumes, and a volumetric characterised by a set of successive terraces, in order to diminish the scale.
At the other extremity, the second extension groups together the adult hospitalisation services. It respects the configuration of the hospital in every detail, advancing further towards the road, in order to follow the same offset pattern. The central part of the existing building encompasses the more ambulatory, outpatient-oriented functions of hospitalisation, and hydrotherapy.
The new corridor located with the front façade links the 2 entrances, the existing one, and the new one for the outpatient hospital. It also links all the core vertical circulations, to avoid visitors entering departments they do not need to cross.
All these architectural elements reinforce the effect of perspective. They frame and enhance the volumes already constructed.
The architecture, in the image of Heaven and Earth, functions in total symbiosis with the existing constructions.
The façades of the blocks form a dual combination. On the one hand, that of Light – through the glass and white panels – and, on the other hand, Earth – through the use of a metal colour imitating Corten steel.
The glass also provides an interior-exterior permeability: it reflects the Sky and Nature and protects from the sun using screen-printed elements.
The Corten steel, with its patina and colour, forms the solid, enveloping, beneficent, and warm aspect of the Earth.


The external developments are in harmony with the concepts set out above.
The opening up of the view of the main entrance of the site creates a theatrical effect of arrival in the clearing. It enhances the architecture and accentuates the effect of perspective.
The road, re-routed in front of the main entrance, enables:
The materials used differentiate the main approach from the other spaces reserved for slower or more reduced or limited circulation, (drop off points, shuttle, deliveries, ambulances, etc.) and for vulnerable users. The planting meets the needs of comfort and safety. According to the traces of natural and instinctive routes left by users, the approaches and parking has been re-assessed and some of these re-worked. The lodge approaches have been adapted to provide additional therapeutic space. The external occupational and physiotherapy functions will be disseminated through the entire site in order to make the patients’ experiences more agreeable. Numerous social areas, and seating and meeting zones have also been planned. Additional parking space has also been provided for.
In order to render flows simpler, more practical, and more immediately comprehensible for everyone, these have been channelled.
The existing access routes have been retained, and two new, secondary entrances provided at the end of the linking corridor. These will facilitate the entrance and passage of staff between buildings. One of these entrances will also benefit patients arriving at the treatment lodges.
The addition of 2 vertical circulation towers between new blocks and existing buildings increases the provision of lifting equipment. As well as removing the bottlenecks in the existing installations, this enables some of these to be specifically allocate.

plan +1
want to know more about assar or contribute to its continuous development