from candy factory to architect's office, a contemporary design in an industrial-historical setting

from candy factory to architect's office, a contemporary design in an industrial-historical setting

The site was home to Confiserie Roodthooft for nearly 80 years, best known for its Caramella Mokatines and Arabierkes. A property developer purchased the site in 2017, but due to the project’s complexity, the redevelopment could only begin two years later. Bold Architects led the design, collaborating with Patine Architects, who took charge of restoring the site. A significant part of the site, including the factory director’s residence, had been officially designated as a monument since 2003. Bold and Patine successfully restored the original Art Nouveau style and industrial ambiance staying true to the original design. The historic factory site was transformed into a vibrant hub with 41 residential units and 5 office units, creating a mixed-use development spread across 7 buildings. The highlight is the former factory hall, where assar architects established their offices in 2024.


| program | conversion of a factory building into an architect’s office |
| client | assar architects |
| address | Lange Leemstraat 374A • 2018 Antwerp |
| building type | work |
| status project | completed |
| expertises | |
| offices | antwerp |
| size | 890 sqm |
| team | • client: assar architects • contractor: TM Vanhout - Denys • office stability: Arcade • office technical equipment: Botec & Thermo-service |

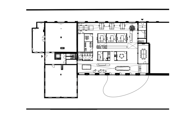
The factory hall comprised an open shell volume of approximately 900 sqm and 8 metres in height, featuring a protected brick façade with green joinery on one side (matching the oldest discovered paint layers). On the opposite side a renewed façade with terracotta-coloured joinery harmonizes with the red brick appearance of the new neighbouring volumes.
Additionally, there were certain historical elements that assar aimed to showcase in the new office interior. The concrete ceiling structures were preserved, along with an old stairwell featuring authentic wall tiling and a handrail engraved with buttercup silhouettes, referencing the building’s origins as a butter factory constructed in 1905. The current manager has since moved into the management office, which overlooks the factory hall through a large window.
With these principles in mind, the architects set to work designing their new home in Antwerp.
To optimize the available space without compromising the authentic character of the old factory hall, a long steel mezzanine structure was integrated into the design. This approach addressed the request of the Heritage Agency by creating two large voids in the longitudinal facades, thereby preserving the grandeur of the structure.
Two-metre-high concrete beams create a striking roof structure that spans the open hall, allowing soft northern light to filter in. This unique roof design influenced the arrangement of the floor plan, making use of the different characteristics of the high and low zones.
Beneath the building, a new underground parking facility was added, establishing the points where the columns of the new steel structure could be placed. These points were creatively utilized to achieve the necessary symmetry between the two voids, including the addition of angled “pushers.” Additionally, the walls were positioned next to the structure, leaving the black-painted columns exposed and incorporating the entire steel framework into the interior aesthetic.
The garden-facing façade, which was not protected, received exterior insulation and new facing bricks. On this side, where there was once a completely solid wall, several metres high windows have been installed, offering views of the communal courtyard where assar’s staff gather for lunch.


When thinking of sustainability, solar panels or heat pumps often come to mind, and while these are certainly important, sustainability encompasses much more. Sustainability is ‘produced or obtained in a way that causes the least possible impact on the environment and nature’. Therefore, it begins with the very first pencil stroke of the design concept. The entire design is conceived with flexibility in mind, meaning that the base structure is solid and permanent to ensure a longer lifespan, while an adaptable layout leaves minimal marks or waste during reconfiguration or changes in function. This is achieved, among other ways, by avoiding the installation of electrical wiring or floor boxes in the polished concrete. The industrial floor continues beneath all lightweight walls, allowing the space to be converted into a single open area. The permanent elements, such as the steel skeleton and facade openings, were designed in a rectilinear manner and at fixed distances to maintain a flexible layout.
Since assar acts not only as architect but also as client, they had control over another aspect of sustainability:
By choosing a central location, assar invests in a clear and efficient public transport network (sustainable mobility) while reducing the impact of motor traffic and congestion.
Opting for a mixed-use residential area, where living and working are combined, leads to a more efficient and compact use of space, including shared outdoor areas and parking facilities.


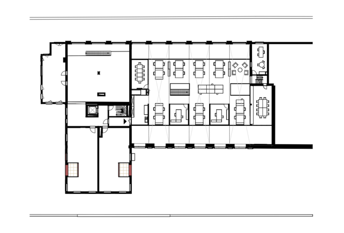
The mezzanine structure is constructed using perforated beams with surrounding edging, columns, and angled pushers, allowing for the creation of a maximum intermediate floor by supporting a 3.5-metre cantilever. The steel was painted black and deliberately oversized to provide sufficient fire resistance without Rf painting. This finish also serves an aesthetic purpose. The building dates back to 1905, in the midst of the Art Nouveau period, which was characterised by a pronounced design of structural (steel) elements. Assar architects were inspired by this and investigated how the steel could add value to the interior. Consequently, the profiled steel was oversized so that the lower flanges would remain visible, and the C-profiles at the ends would border the entire floor. Floor spotlights were integrated into the bottom of each of the I-beams to highlight the structure in the evening.
Even the smallest details were considered when integrating the technical systems. Castellated beam profiles were initially considered to accommodate ventilation ducts without reducing the floor heights. However, as the cantilevers required the maximum capacity of the steel profiles, the web plates needed to retain as much mass as possible. Therefore, the design switched to I-beams with strategically positioned openings. To manage this effectively, the architects drafted the entire ventilation route in 3D, determining the openings for each steel profile. The extensive space required a large and staggered ventilation flow rate, which typically results in many ceiling diffusers. As a result, a near-invisible detail emerged, with slot diffusers forming a shadow joint between the white ceilings and the black beams.




ventilation ducts axonometry
The spatial layout is designed to be flexible. On the ground floor, the black mezzanine structure primarily houses individual offices, using a combination of glass walls (in the longitudinal direction) and upholstered acoustic walls (in the transverse direction) to maximize lateral views from one façade to the other.
The upper level provides a large open space with various office islands, offering a beautiful view of the surroundings and the rest of the office.
The interior design is closely aligned with the surrounding shell, featuring green and terracotta as dominant hues, complemented by shades of grey. The green colour was mandated by heritage as this was the original colour of the external wooden joinery along the alley. Bold Architects chose the red colour for the windows and facades of the new sections to accentuate the heritage elements.
The colour palette is reflected in several features, such as the new polished concrete floor and the upholstered acoustic walls (grey), the tiling of the reception desk (green), the bar in the dining area (terracotta), and the kitchen’s colour (terracotta). This resulted in a carefully balanced design, complemented by the black steel and warm wood accents.
Exposing the old brick walls along the alleyway added a sense of historical value while introducing colour and texture to the office space. To unify the design, a recurring curved circuit shape was introduced in various fixed elements, such as the reception desk, bar, dining table and neon lighting.
The workstations are also customised: the new, flexible system from Hay New Order offers a variety of small and large, high and low desks, while the upholstered system walls by Beddeleem provide secluded or enclosed workspaces within the open layout.
Furthermore, maximum attention was given to comfort and coziness to create a pleasant working atmosphere, with acoustics being a key focus. In addition to the upholstered transverse walls, the perforated gypsum ceilings above the mezzanine’s ground floor, the carpet on the upper level, and the grey acoustic spray in the hall all contribute to the overall acoustic integrity. Achieving a comfortable acoustic environment is challenging in a raw industrial setting, but the results are excellent.
Modular Lighting Instruments collaborated on the lighting design. The main eye-catcher is the large neon lamp above the dining table, flanked by the several metres high windows in the renovated façade, allowing the light to change throughout the day.





exploded axonometrie


As one of the larger architecture firms in Belgium, assar felt a responsibility to set an example of sustainable operation and social commitment. By upgrading an old factory building in the city centre, assar contributes to the preservation of Antwerp’s heritage while improving accessibility via public transport.
The central location allows employees to link morning or evening activities with working hours, reducing peak-hour traffic and encouraging after-work activities.
The new trend of hybrid working required a layout that highlights the advantages of a physical office space. Therefore, the office encourages social interaction and collaboration through a diverse range of office spaces and furniture.
Integrating residential and office spaces within the same plot enhances spatial efficiency, in part by sharing and maintaining outdoor areas with local residents.







ground floor plan plan 1st floor





want to know more about assar or contribute to its continuous development