an adaptable building for innovation

an adaptable building for innovation

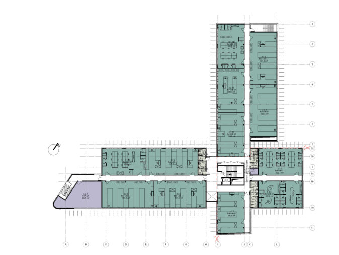
In the spirit of a human-scale campus, building 17 (B17) is the first biotechnology laboratory within a land parcel designated to accommodate several other buildings in the near future. With two stories (R+2), it houses 41 laboratory modules (L1 and L2), communal spaces, and a parking area, all for the benefit of SEM Genopole and the GIP.
The entrance, facing the heart of the campus, opens to a garden that will serve as the “green lung” of this land unit. All future building lobbies, designed as areas for life, relaxation, and interaction for all site users, will open onto this garden. All reception and communal spaces are centralized around this garden-park, and the building is organized with a logical flow, starting from the main hall, and leading to more independent, secure, and confidential spaces.


| program | biotechnology laboratory • building 17 |
| client | SEM Génopole |
| address | Campus 5 boulevard Coquibus • Evry-Courcouronnes (91) |
| building type | work |
| status project | competition |
| expertises | |
| offices | paris |
| size | 5.065 m² |
| team | • client: SEM Génopole • architect: assar architects • technical ingineering: Edeis |

The cross-shaped layout enables the organization of all circulation around a central staircase, a shared space for breathing and relaxation on each floor. Designed with a versatile and reversible framework, the laboratory floors can be stacked, interchanged, and adapted to different possible and evolving activities.
The interior architecture follows the concept of “Flex Offices,” offering multifunctional spaces tailored to a young, dynamic, and innovative-minded audience. It caters to a demanding community of established startups that will enjoy the freedom to conduct their activities in welcoming living spaces and protected research environments. The atmospheres are warm, distinct, and unique in each unit.
The technical design of this building aligns with its functionality, emphasizing efficiency and segregation. Technical components are situated close to the specific needs they serve, all while having fully independent access.
The facade of Building 17 defines its identity, creating a play of transparency and filtering that imparts both lightness and delicacy to the building’s exterior. It filters light and ensures the privacy of research spaces. It also encompasses the technical components, resulting in a complete, unified building form that seamlessly blends with its green surroundings.


want to know more about assar or contribute to its continuous development