when the location & quality of a residential architectural design enable reconnection with a commune’s green belt
when the location & quality of a residential architectural design enable reconnection with a commune’s green belt

The Commune of Auderghem is located amongst the green belt communes of the South East of Brussels. Auderghem was once a hamlet nestling in the heart of the vast clearing formed by the Woluwe valley, whose inhabitants made their living from the exploitation of the Soignes forest. The presence of the forest has always been a real attraction for its peace and quiet and has become an essential destination for lovers of fresh air and nature.
Following the creation of the route of the Wavre road and later at the beginning of the 20th century with the creation of the Boulevard du Souverain under Leopold II, the area was gradually urbanised.
Today, the new residential project reconnects with the identity of the green belt and is part of the PPAS [local land use plan] route, replacing an office building near to the cultural centre. The new buildings are thus truly at the very heart of the life of the district and thus acquire all its many qualities.


| program | demolition of an office building & construction of a residential building consisting of 89 apartments & 2 “casco” business spaces (bank & medical practice) |
| client | Besix Red (Oxygen Development) |
| address | boulevard du Souverain 191 • 1160 Auderghem |
| building type | live • work |
| status project | completed |
| expertises | |
| offices | brussels |
| size | 11.967 m² |
| team | • client: Besix Red (Oxygen Development) • architect: assar • general contractor: Jacques Delens |

Developed by Besix RED and designed by assar, the residential project at 191 Boulevard du Souverain has significant mobility advantages with the immediate proximity of the metro (Herrmann Debroux), tram line 94 and bus line 34. The project is also directly connected to the cycle paths of the Boulevard du Souverain and the green walking route.
The strategic position on the Brussels ring road is ideal for accessing the city centre via either Avenue de Tervueren or Avenue Louise. The East ring of Brussels and the E 411 motorway to Luxembourg are accessible in 3 minutes by car. Finally, the Forêt de Soignes, located 700 m away, can be reached on foot in 10 minutes.



The residents of the Oxygen building have all the facilities within walking or cycling distance:
The Oxygen building is part of the current lifestyle of a habitat that combines the advantages of the city with the proximity of nature.



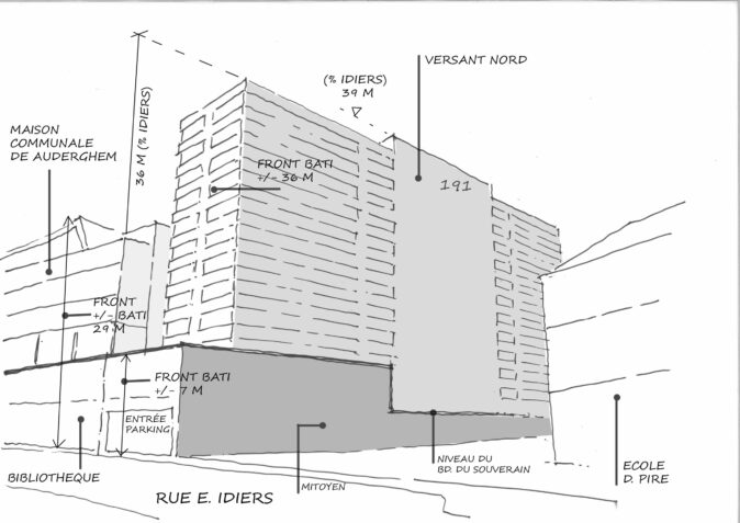
The old office building was a building in the image of those from the 1960s. It was set in a rectangle and repeated an identical plan on all 11 levels. The result was a bar-shaped building with a rigid expression and a disproportionate height on the Rue Idiers side.
After its demolition, the new profiles sculpt the volumetry in a way that is adapted to the very different context of the two streets. They are made up of two adjoining buildings. On rue Idiers, the building has a ground floor + 5 levels of the same height as the Maison Communale [Commune Hall] and forms a base topped by two set back floors.
On Boulevard du Souverain, the building has the same base with a commercial ground floor topped by 4 storeys with a penthouse as a crown. The heights are in line with those of the existing building. The effect of the plinth induces a dual reading of the profiles.
The base corresponds to the average of the neighbouring buildings and is surmounted by an emergence on the boulevard side, so that the building becomes the signal of the place in the urban perspective of the boulevard. The central volume of the articulated structure is limited to R+5 to create a significant penetration in order to benefit from the sunlight and to offer visual openings for the floors set back. The volumes in the R+5 section are read as a predominantly horizontal ensemble in relation to the neighbouring built context. The recessed upper floors are designed in 4 facades to facilitate natural light for all the flats.
All the flats are structured with terraces, most of which are favourably oriented.


The architecture provides a dynamic composition of the ensemble with a rich variety of configurations that never fall into systematic repetition. The objective is to personalise each apartment with its own terrace layout, orientation, and view, taking into account access to natural light.
The façade materials used in the base are natural stone (flamed basalt grey) enhanced by white architectural concrete frames. The emergence or the set back floors are made of white plaster on insulation;
Finally, the building offers a well-defined and dynamic skyline with apartments mainly located on favourably oriented corners.
A varied programme with a wide range of apartment types. The two buildings comprise 89 apartments, including:

The building was built in 2015 and is a passive building, i.e. it has low energy consumption. The building has voltaic panels, rainwater recovery, and a storm water basin. The roofs are planted.
Heating is provided by a central heating system (rooftop boilers) with an eC-eF loop. Ventilation is provided by individual double flow systems.


outline sketches outline sketches


want to know more about assar or contribute to its continuous development