how a vegetal archway expresses the "Made in Belgium" know-how for better constructing the future in Dubai?

how a vegetal archway expresses the "Made in Belgium" know-how for better constructing the future in Dubai?

As the philosopher Gilles Deleuze says: “Believing in the world is what we miss the most. We have completely lost the world. We have been dispossessed of it”.
Effectively, today’s youth is stuck between, on the one hand, the denial of the latest climate-skeptics and, on the other hand, collapsologists warning us of the probable collapse of our civilization incapable of quickly reinventing itself to face the challenges of climate change.
The theme of Expo 2020 Dubai, which opens on October 1, 2021, is “Connecting Minds, Creating the Future”. Associated agencies “Vincent Callebaut Architectures” and “assar” wanted to use this leitmotif to unite their respective expertise and clearly proclaim the youth that architects and citizens are now able to co-build ecological, inclusive, and solidary cities.
The Belgian pavilion is called “The Green Arch”, as it combines intensive greenery and futuristic design in solid wood. The pavilion aims to be exemplary in terms of sustainable development. It is an ode to regenerative circular economy, to biobased and geo-sourced materials, to the integration of bioclimatic rules and renewable energies, as well as to the preservation of biodiversity and nature.


| program | construction of the Belgian pavillon for the Dubai World Expo plant pavilion with a focus on smart building |
| client | BelExpo • Régie des Bâtiments |
| address | C77, Mobility District • Expo 2020, Dubai |
| building type | entertain |
| status project | completed |
| expertises | |
| offices | brussels |
| size | 3.500 m² |
| team | • client: BelExpo + Régie des Bâtiments• • in collaboration with Vincent Callebaut Architectures • contractor: Besix & Besix 3D • scenographer: Facts & Fiction + Envie • F&B: Créneau International • structural engineering: Ney & Partners + RBG • fluid engineering: MK Engineering + Jain • landscape designer: Citiscape |

Located in the “Mobility District”, the architectural concept of the Belgian pavilion is to offer visitors the largest shaded and naturally ventilated agora in the axis of the prevailing west-east winds of Dubai. Its programming is placed higher up so that a maximum of the ground floor space is free to use for the public.
This means that “The Green Arch” is based on a “bridge-building”, creating an immense vault with double curvature between its two pillars. This curvaceous vault is generated from a universal mathematical minimum surface called “hyperbolic paraboloid”. This paraboloid is built in CLT – Cross Laminated Timber – with more than 5.5 linear kilometers of spruce louvers generating a giant wooden Mashrabiya – which by rotating of 180 degrees – envelops the entire project to better protect it from solar radiation.

The agora was designed as “shortcut”, directly linking the “Mobility District” and the “Sustainability District” by crossing the pavilion. The street furniture of the public spaces on the ground floor was entirely made of 3D-printed white concrete.
In addition to Belgian staples such as French fries, waffles and chocolate merchants as well as the bistronomic restaurant, the pavilion offers a view of the Belgian landscape of 2050 under the slogan “2050 Smart & Green Belgium”. Starting at the meeting space under the arch, great Belgian personalities drawn like comic book characters announce the breadcrumb trail of the educational scenography imagined by our partners Facts and Fiction.
The scenography is broken down into 4 highlights: first, the futuristic escalator, designed as a space-time tunnel, propels visitors towards the 2050 odyssey. Secondly, once again accom-panied by the Belgian comic heroes, the “Future Mobilty Lab” provides the three regions (Brussels, Flanders, and Wallonia) to exhibit the means they implement to move towards soft and low mobility-carbon at the national level. Third, the “Main Show” offers an immersive video-projection experience that erects a sustai-nable and resilient Belgium skyline for 2050. And finally, the “Belgium Mobility Hub” invites everyone, young and old, through unprecedented dynamic capture, to project themselves into the Belgian cities and ecological architectures of tomorrow.


At the end of the exhibition, visitors are invited to taste Belgian specialties in the bistronomic restaurant “BeHappy” or on the panoramic rooftop offering breathtaking views towards the main dome “Al Wasl” to the East or towards the thematic pavilion of the “Mobility District” to the West.
The “BeBizz” Business Center and its VIP Lounge also offer a high degree of flexibility in amenities to host business talks and international dialogues, to connect minds and create the desirable future.
Symbolically, this slender bridge-building represents the dynamism and the plural singularity of federal Belgium and its Regions. Belgium is stronger when it is united!
It is a dynamic monolith dedicated to renewable energies, covered with a large photovoltaic and thermal solar canopy, producing electricity and domestic hot water for the pavilion’s self-consumption.


It is also a biophilic architecture that hosts a rich program whose balconies and rooftop are planted with intensive revegetation of more than 2,500 plants, shrubs, and trees. These “breathable”, drip-watered facades, naturally refresh – through evapotranspiration from the plants – the large outdoor terraces where having fun is encouraged.
“The Green Arch” perfectly expresses the concept of “Belgitude”, this typically Belgian aptitude for synthesizing in the heart of Europe the very creative Latin romantic spirit with the pragmatic ingenuity of Germanics and Anglo-Saxons.


The construction is the result of a public-private partnership between the General Commissioner BelExpo, Régie des Bâtiments, and the Besix construction company. In total, 93 companies took part in the project, 46 of which were involved in sponsoring the pavilion designed on the principles of the circular economy as a giant meccano.
“The building will not be doomed to destruction” said Pierre-Yves Dermagne, the Belgian Federal Minister for the Economy. “Everything has been done so that it can be rebuilt, I hope, in Belgium.”
“A universal exhibition is always a special moment, especially for a small country, because it can compete on an equal footing with the big ones”, he noted during the press conference which took place in the Atomium in Brussels on Thursday, September 23, 2021.
The intelligence of a country is first and foremost that of its citizens. We would like to warmly thank all our teams who made this dream a reality.
Vincent Callebaut Architectures + assar

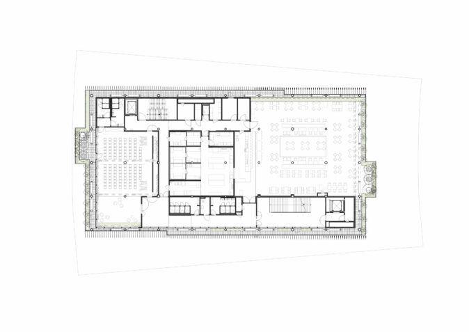
ground floor plan

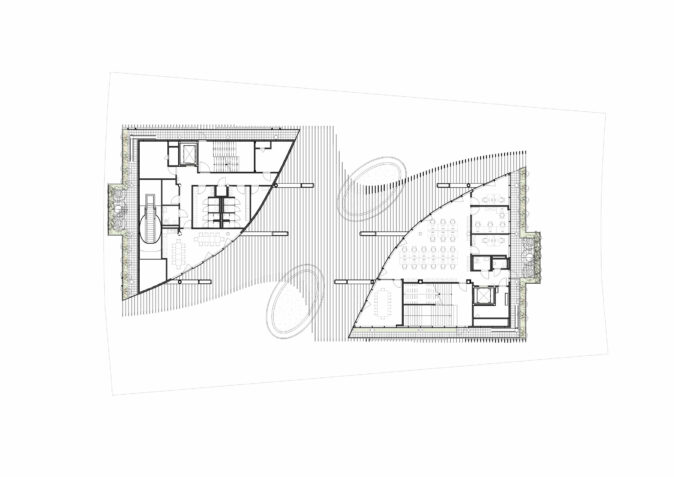
first floor plan second floor plan


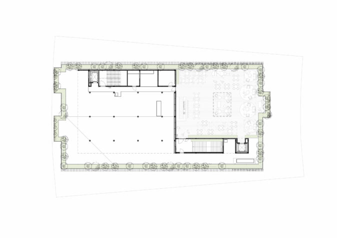
third floor plan rooftop plan


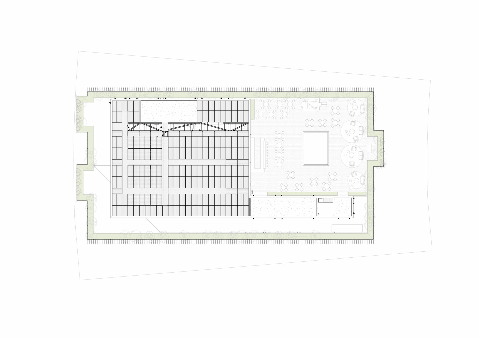
solar canopy plan


want to know more about assar or contribute to its continuous development