when a luminous architecture integrates technological performance to create a “Net Zero Energy” office building, certified BREEAM “Excellent”
when a luminous architecture integrates technological performance to create a “Net Zero Energy” office building, certified BREEAM “Excellent”

objectives
The architectural challenge of this project, located in the vicinity of other institutions and various means of transport in the historic centre of Brussels, was threefold:
• creation of an office with high quality, user-friendly spaces that are in contact with the public spaces outside
• urban integration of an office building in a densely built-up area of Brussels & enhancement of the remains of the first Brussels city wall dating from the 14th century (classified by the CRMS)
• achievement of an ultra-low energy building (zero-energy label) with a BREEAM certified “Excellent” score
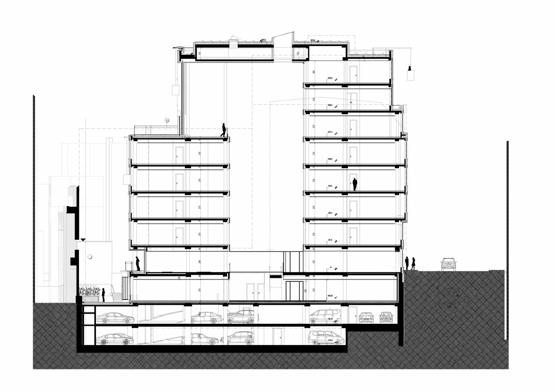
In order to achieve these objectives, assar designed a compact building, articulated around an asymmetrical atrium opening onto the lower part of the city and the old ramparts. This approach is consistent with the heritage policy of the city of Brussels, which aims to show all residual medieval elements to the public.
The presence of the atrium not only allows for a flexible and efficient organisation of the office floors, but also gives the building a scale and prestige in keeping with its ambitions.
Setesco designed a structure that perfectly met assar requirements: an ingenious column-joist system to develop the landscape and aerial nature of the spaces, while the old walls were either doweled or doubled up to ensure their preservation. Due to the compact nature of the complex, it was possible to use technical and architectural elements to meet low energy consumption and a BREEAM “Excellent” score.

| program | demolition of an existing building & reconstruction of a passive office building |
| client | AXA Real Estate Investment Belgium |
| address | rue Treurenberg 16/28 • 1000 Bruxelles |
| building type | work |
| status project | completed |
| expertises | |
| offices | brussels |
| size | 12.130 m² |
| team | • architect: assar • stability: Ellyps • technology: Ellyps • contractor: Democo |

assar used a complex design in order to integrate it as far as possible into the existing urban landscape. The Treurenberg project had to respect the footprint of the original building, while at the same time freeing up the medieval enclosure and increasing the amount of sunlight on the surrounding plots.
The public reading and observation of the new building had to be accessible from the public spaces, in particular Place de Louvain and Rue Royale. The scale and lines of the facades are borrowed from this setting and from the very dense built environment – a mixture of old and modern housing and office buildings – with direct openings to the various surrounding views. The architects wanted to “break” the perception of tall, imposing buildings by covering the top two floors with matt black photovoltaic panels to create a second, clearly differentiated volume.
The desire for natural light led the project designers to propose a compact volumetric design, structured around a large atrium extending over the 8 floors of the building. This concept also allows for a flexible organisation of the office floors and gives the site a prestigious identity. The building has a large, bright entrance on two levels. Its volumetric design is adapted to the context of the surrounding building, both in terms of size and in terms of materials and window openings. The presence of the atrium not only allows for a flexible and efficient organisation of the office floors, but also gives the building a scale and prestige in keeping with its ambitions.
On the ground floor, the atrium opens onto an outdoor patio, which has been designed to highlight the historical remains onthe site. The creation of this patio necessitated moving back the boundary of the building, giving the impression of a third façade and enhancing the natural lighting of the interior spaces. At the top, from the 5th floor, the atrium widens again to form a fully glazed space extended by a terrace, both of which offer an exceptional view of the rooftops of Brussels.


The construction of a new building enabled us to start the energy design of the building from scratch. The ambitions in terms of performance to be achieved have evolved through successive improvements made by the designers. The low energy consumption as required by BREEAM certification – is achieved by means of reinforced insulation, airtightness (measures to ensure optimal indoor air quality) and an overall compact volumetric design.
The building thus meets the criteria of the passive building standard and the zero-energy label. The residual energy requirements are compensated for by natural auxiliary sources, namely a large photovoltaic panel installation.
The building reinforces its sustainable character with various additional aspects, e.g. wooden joinery (little aluminium), sustainable materials without VOCs (volatile organic compounds) emissions, the reuse of rainwater in the sanitary installations, or a complete system of electricity meters distributed according to the rented areas. Finally, as a result of the study of lighting levels, the building was certified BREEAM in 2018 with a score of 74.2% (“Excellent”) for a primary energy consumption of 44.74 kWh/m²/year and a net heating requirement of 7.5 kWh/m²/year.
A particular feature of the building is that it meets its own energy needs. This makes the building the first energy-neutral office building in Brussels. The compensation required by the consumption criteria of a passive building is provided by the sustainable energy production of the PV panels on the roof and the upper floors. These panels cover an area of 1.134 m² and theoretically produce 142 MWh/year. These offsets the requirements of the “zero-energy”- label.

• certification: BREEAM “Excellent”
The building, its equipment, and finishes meet the criteria of a “zero energy” building & those of the BREEAM “Excellent” score, due, amongst other aspects, to:
• integrated architecture
• excellent building insulation
• energy consumption 6 times lower than the average value in Brussels
• the use of sustainable & reusable materials (circularity principle)
• the reuse of rainwater for sanitary facilities
• car parks equipped with charging points for electric vehicles
• electric meters fully distributed according to the rental areas
• measures to ensure optimal indoor air quality
• natural lighting offering optimal comfort for employees
• 49 bicycle spaces & shower rooms with cloakrooms

In 2016, the AXA Treurenberg building received the “Best Innovative Green Building” award at the MIPIM Awards.


section 1 roof, penthouse, photovoltaic panel


ground floor

section 1

want to know more about assar or contribute to its continuous development