how an architectural concept of 6 interconnected houses paves the way for 24 independent residential units for people with disabilities

how an architectural concept of 6 interconnected houses paves the way for 24 independent residential units for people with disabilities

Baltissimmo S.A. built the “Villa Madiba” for the non-profit organisation Ubuntu Achtkanter, a care home with 24 residential units in which disabled people can live as independently as possible throughout their lives. The building also devotes special attention to shared functions and support services.
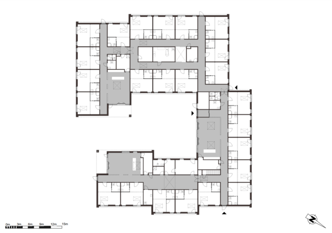
The client had three adjoining plots of land for villas in the vicinity of the headquarters of the non-profit organisation Ubuntu. The objective of accommodating the equivalent of 8 adults per plot of land risked considerably densifying the neighbourhood. The collective possibilities offered by a networked complex reduce the size of the project to the maximum extent and optimise the provision of care. The communal spaces are deliberately arranged around the collective outdoor room. The residents are encouraged to (learn to) live independently. Individual quality of life is therefore ensured by personal outdoor spaces and entrance doors. Finally, the granularity of the village environment is imitated by means of volumetric and material accents.


| program | new housing for people with disabilities |
| client | Baltissimmo S.A. |
| address | Bevrijdingslaan 36-40 • 8580 Avelgem |
| building type | care • live |
| status project | completed |
| expertises | |
| offices | antwerp |
| size | 1.700 m² |
| team | • client: Baltissimmo S.A. • project owner: ASBL Ubuntu Achtkanter • contractor: Bekaert Building Company • stability engineering office: BM Engineering • technical equipment design office: BM Engineering • safety co-ordination: IVC consult |

User-friendliness was one of the main pillars of the concept. Architecturally, this was achieved by dividing the building into 6 interconnected maisonettes, with a ground floor and a pitched roof. Three houses are located on the street side and thus reference a recognisable typology in the streetscape. The other three houses are located at the rear and form a U-shape that encloses the inner courtyard. Each residential unit has its own front garden and front door. A footpath runs around the building and also connects to the rear grounds of the Ubuntu ASBL. Cars are banned from the site and are accommodated at the dropping off and collection area on the street or in the basement.
The building houses 3 common living areas, with fully equipped kitchens. In the studios too, it is possible to provide a kitchenette. Individual adaptability makes a major contribution to user-friendliness. An accompanying person’s room, with a private bedroom and bathroom, offers all the facilities for a good night’s sleep and ensures effective assistance and personal support, if required.

The target population of “Villa Madiba” was very diverse: both the degree of disability (mental and physical) and age might vary considerably. Therefore, adaptability was an important pillar of the project. Combining this adaptability with full accessibility and user-friendliness was the main challenge here. In each studio, it is possible to opt for an easily removable kitchenette and a bathroom with or without a toilet, depending on the degree of care required. After all, a toilet that is never used takes up valuable space. The supports can also be removed if they are not needed.
Every effort has been made to conceal the necessary care elements. For example, the patient hoist in the shared wellness bathroom can be stored in a cupboard when not in use, and the cupboards in the shared living areas can be invisibly locked with magnetic locks. We are convinced that all these details contribute to a “more normal” living environment.



The construction team deliberately opted to locate all the studios on the ground floor so that each resident has his or her own entrance door with a number and doorbell. This greatly increases the sense of autonomy. This means that one can receive visitors directly, without them having to walk through the building.
From an architectural point of view, the “house” typology was the starting point. The project was built on 3 plots of land for villas and is therefore characterised by 3 small houses on the street side. Together with the 3 houses at the rear, an enclosed courtyard was created so that the residents could have their privacy and enjoy total security. The porch that gives access to this courtyard is out of sight, which avoids the feeling of enclosure.
By leaving the slope of the roofs open in the living spaces and corridors, the walk through the building never risks being dull and sad; it thus becomes compelling and varied. The height also confers upon the project a certain grandeur. This height and the extra daylight that comes through the skylights considerably increase the feeling of space.
From a material point of view, the roofs and facades are finished in slate in three different colours; the front facades are finished in padouk to give the entire building a warm and welcoming appearance.
We, the client, and the operator are very proud of the result. Villa Madiba represents an architectural success story. In this project, a disability is not an impediment: it enables everyone to flourish, with dignity, in a beautiful living environment


The energy choices were largely determined by the target population since thermal comfort is very important for people with disabilities. To achieve individual control over cooling and heating, we decided to work with fan coil units driven by an air-water heat pump.
The concept of individual houses is also reflected in the technology: each house has its own ventilation unit. Air conditioning and heating are centralised. A large outdoor wadi has been created for the necessary infiltration of rainwater. In this way we have prepared for the eventuality of the rainwater tanks being completely full.




want to know more about assar or contribute to its continuous development